UA RU
 

Таунхаус №4

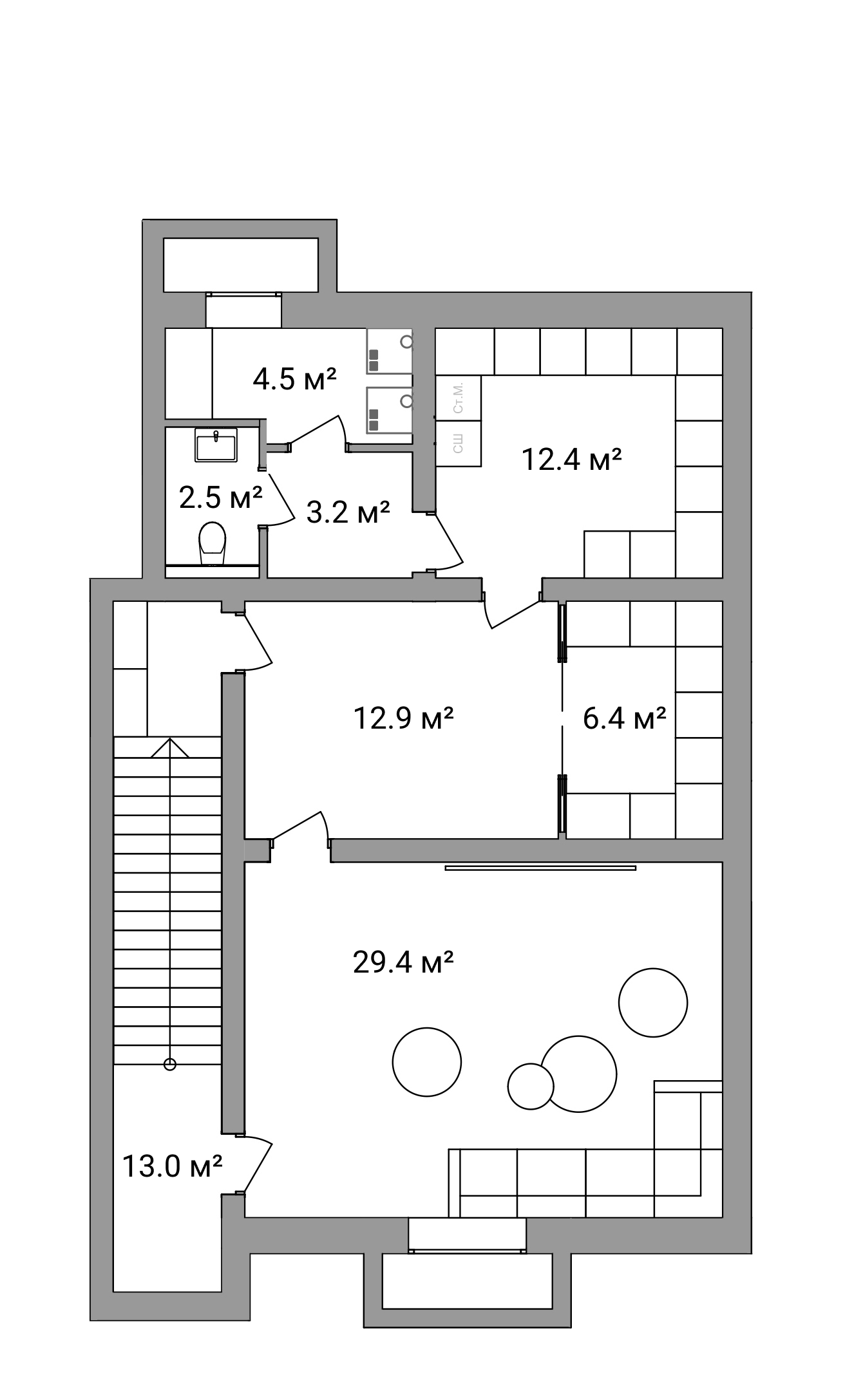
1-й поверх
Продано
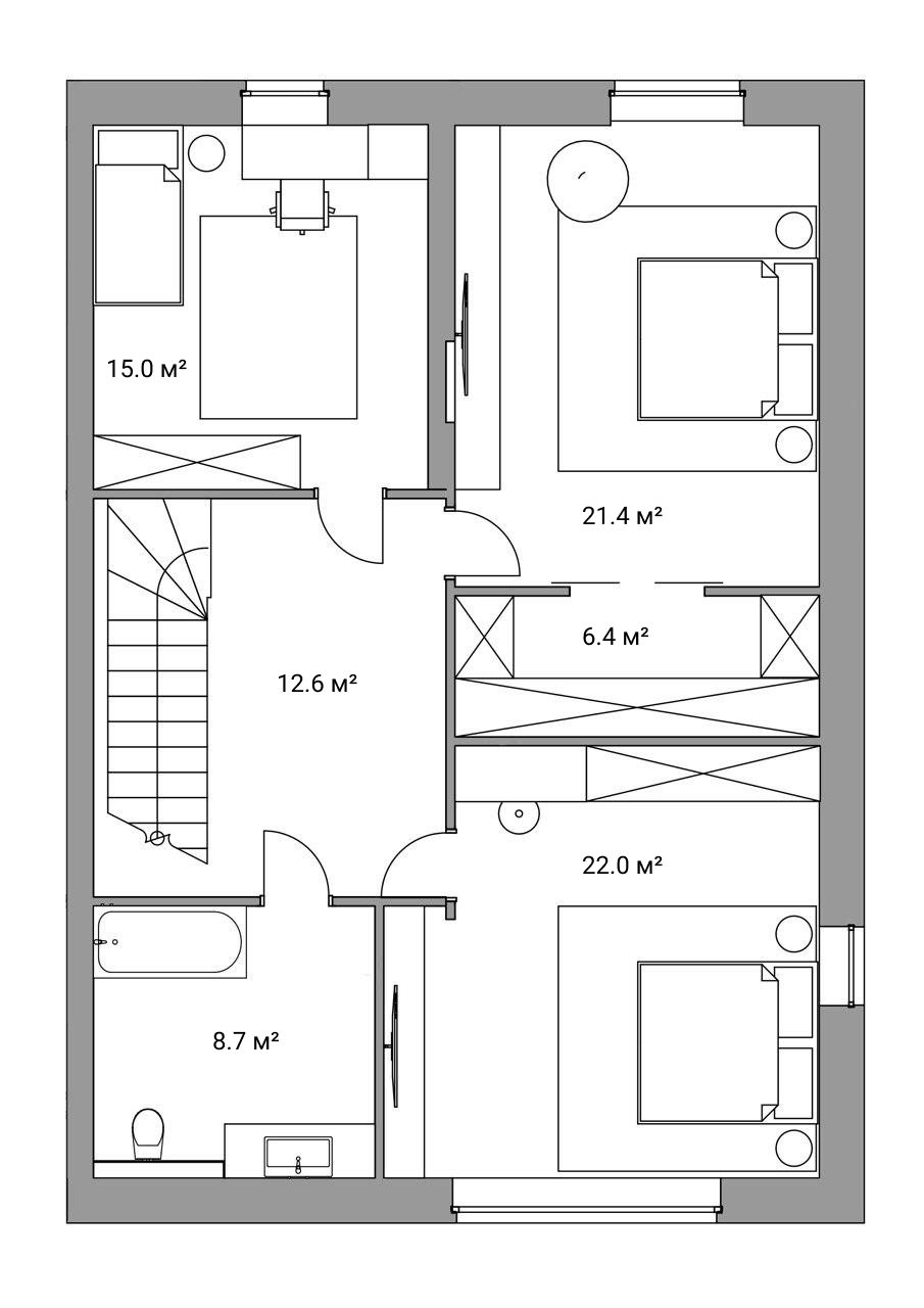
2-й поверх
Продано
Детальніше про комплектацію таунхаусу
1-й поверх
  • Передпокій 3,4 м2
  • Вітальня 53,8 м2
  • Кухня 14,6 м2
  • Санвузол 11,9 м2
  • Тераса (К=0,3) 4,9 м2
2-й поверх
  • Спальня 22,0 м2
  • Спальня 21,4 м2
  • Дитяча 15,0 м2
  • Хол 12,6 м2
  • Гардеробна 6,4 м2
  • Ванна кімната 8,7 м2
Підвал Дивитись 90 м2
Загальна площа 174 м2
Дивитись планування
План 1-го поверху
План 2-го поверху

Комплектація таунхауса

Прибудинкова ділянка від 3,5 соток
Крита тераса Площа тераси - 16 м. кв.
Парковочні місця Мінімум 2
Стіни Газобетон Aeroc товщиною 375мм
Утеплення Стіна: плити Hirsch Porozell EPS c додаванням графіту товщиною 100мм; дах: мінеральна вата Isover, товщиною 250мм
Дах Двошарова бітумна черепиця Shinglas
Вікна REHAU 70 П'ятикамерний профіль. Двокамерний склопакет з енергозберігаючим склом Clima Guard. Німецька фурнітура GU
Двері Броньовані металічні двері
Опалення Турбований газовий котел Vaillant
Водопостачання Водозабезпечення із артезіанської свердловини, окремий лічильник
Каналізація Cистема автономної каналізації
Электроенергія Підведена електропотужність - 12 кВт, з входом 380 В
Висота стелі 2,8м
Внутрішня обробка Якісна стяжка, перестінки, гіпсова штукатурка
TV, телефон, інтернет Ввід оптоволоконних кабелів, для організації інтернет послуг, TV
Сходи Монолітні сходи із бетону

Дивитись інший таунхаус

1 167 м2 2 поверхи
3 спальні
Ділянка 9,72 соток
Тераса 16,9 м. кв.
+Підвал 72,4 м. кв.
Продано
2 174 м2 2 поверхи
3 спальні
Ділянка 3,31 соток
Тераса 16,2 м. кв.
+Підвал 90,3 м. кв.
Продано
3 174 м2 2 поверхи
3 спальні
Ділянка 3,25 соток
Тераса 16,2 м. кв.
+Підвал 90,3 м. кв.
Продано
4 174 м2 2 поверхи
3 спальні
Ділянка 3,36 соток
Тераса 16,2 м. кв.
+Підвал 90,3 м. кв.
Продано
5 174 м2 2 поверхи
3 спальні
Ділянка 3,28 соток
Тераса 16,2 м. кв.
+Підвал 90,3 м. кв.
Продано
6 174 м2 2 поверхи
3 спальні
Ділянка 4,17 соток
Тераса 16,2 м. кв.
+Підвал 83,8 м. кв.
Продано

Обрати житло на інтерактивній карті

Таунхауси Таунхауси-дуплекс Квадрохаус Котеджі Коворкінг-кав'ярня
Черга 2 Черга 2 Черга 2 Черга 2 Черга 2 Черга 2 Черга 2 Черга 2 Черга 2 Черга 2 Черга 2 Черга 2 Черга 2 Черга 1.5 Черга 2 Черга 2 Черга 2 Черга 1.5 Черга 2 Черга 2 Черга 2 Черга 2 Черга 2 Черга 1.5 Черга 1.5 Черга 1.5 Черга 1 Черга 1 Черга 1 Черга 1 Черга 1 Черга 1 Черга 1 Черга 1 Черга 1 Черга 1 Черга 1 Черга 1 Черга 1
Черга 2
В проекті
+
Черга 2
В проекті
+
Черга 2
В проекті
+
Черга 2
В проекті
+
Черга 2
В проекті
+
Черга 2
В проекті
+
Черга 2
В проекті
+
Черга 2
В проекті
+
Черга 2
В проекті
+
Черга 2
В проекті
+
Черга 2
В проекті
+
Черга 2
В продажу
+
Черга 2
В продажу
+
Черга 1.5
Продано
+
Черга 2
В проекті
+
Черга 2
В проекті
+
Черга 2
В проекті
+
Черга 1.5
В проекті
+
Черга 2
В проекті
+
Черга 2
В проекті
+
Черга 2
В проекті
+
Черга 2
В проекті
+
Черга 2
В проекті
+
Черга 1.5
В проекті
+
Черга 1.5
Продано
+
Черга 1.5
Продано
+
Черга 1
Продано
+
Черга 1
Продано
+
Черга 1
Продано
+
Черга 1
Продано
+
Черга 1
Продано
+
Черга 1
Продано
+
Черга 1
Продано
+
Черга 1
Продано
+
Черга 1
Продано
+
Черга 1
Продано
+
Черга 1
Продано
+
Черга 1
Продано
+
Черга 1
Продано
+
Заявка

Хочеш переглянути все наживо?

Забудовник надає безпроцентну розстрочку, на придбання квартири або таунхауса,
за умови мінімальної передоплати 50%

Заявка відправлена!

Натискаючи на кнопку “Записатися на перегляд” ви даєте згоду на обробку персональних даних.
Дані не будуть передані третім особам.

Залишити заявку

Заявка відправлена! Найближчим часом менеджер зв'яжется з вами для уточнення деталей.