UA RU
 

Дім №36

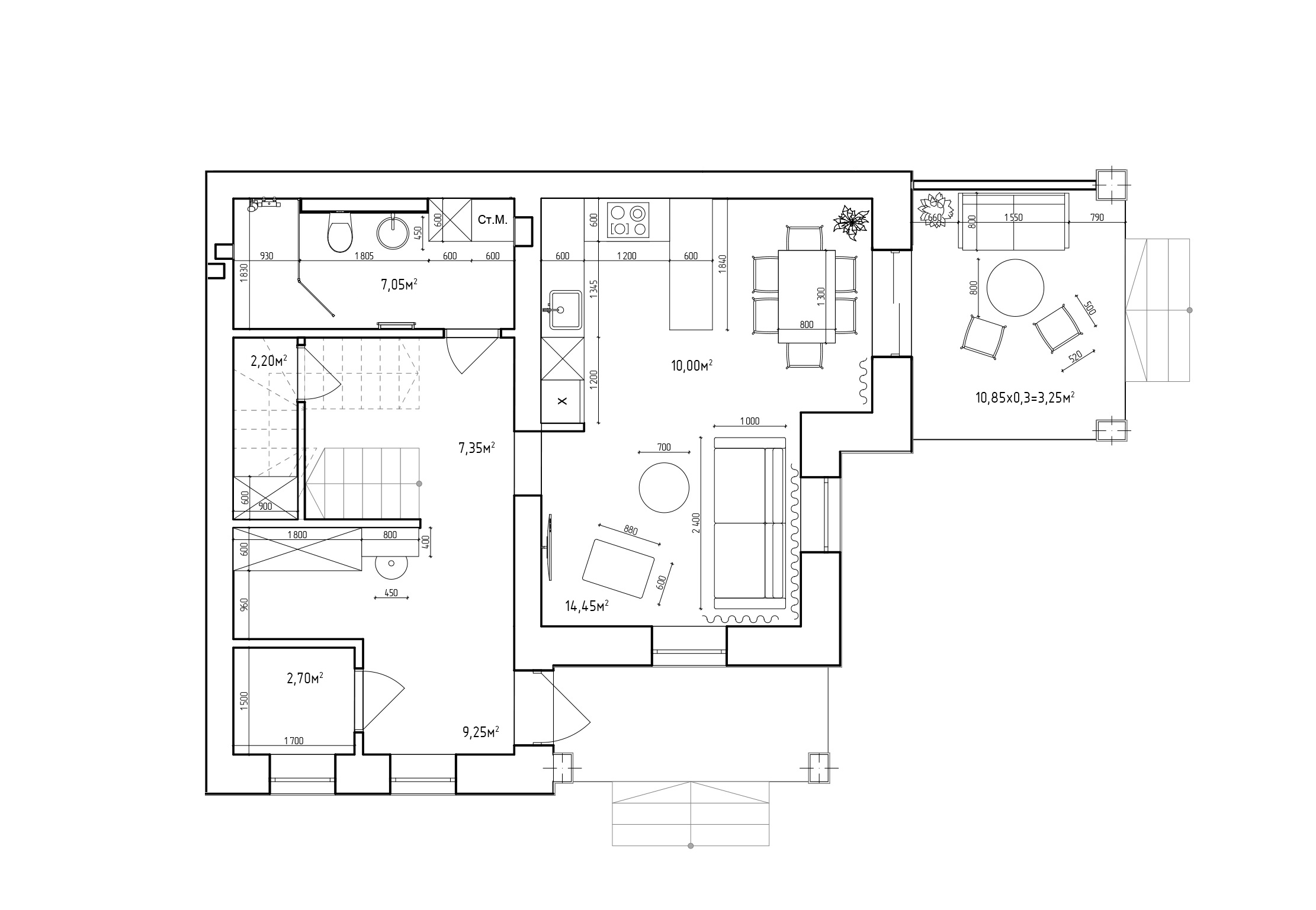
1-й поверх
Продано
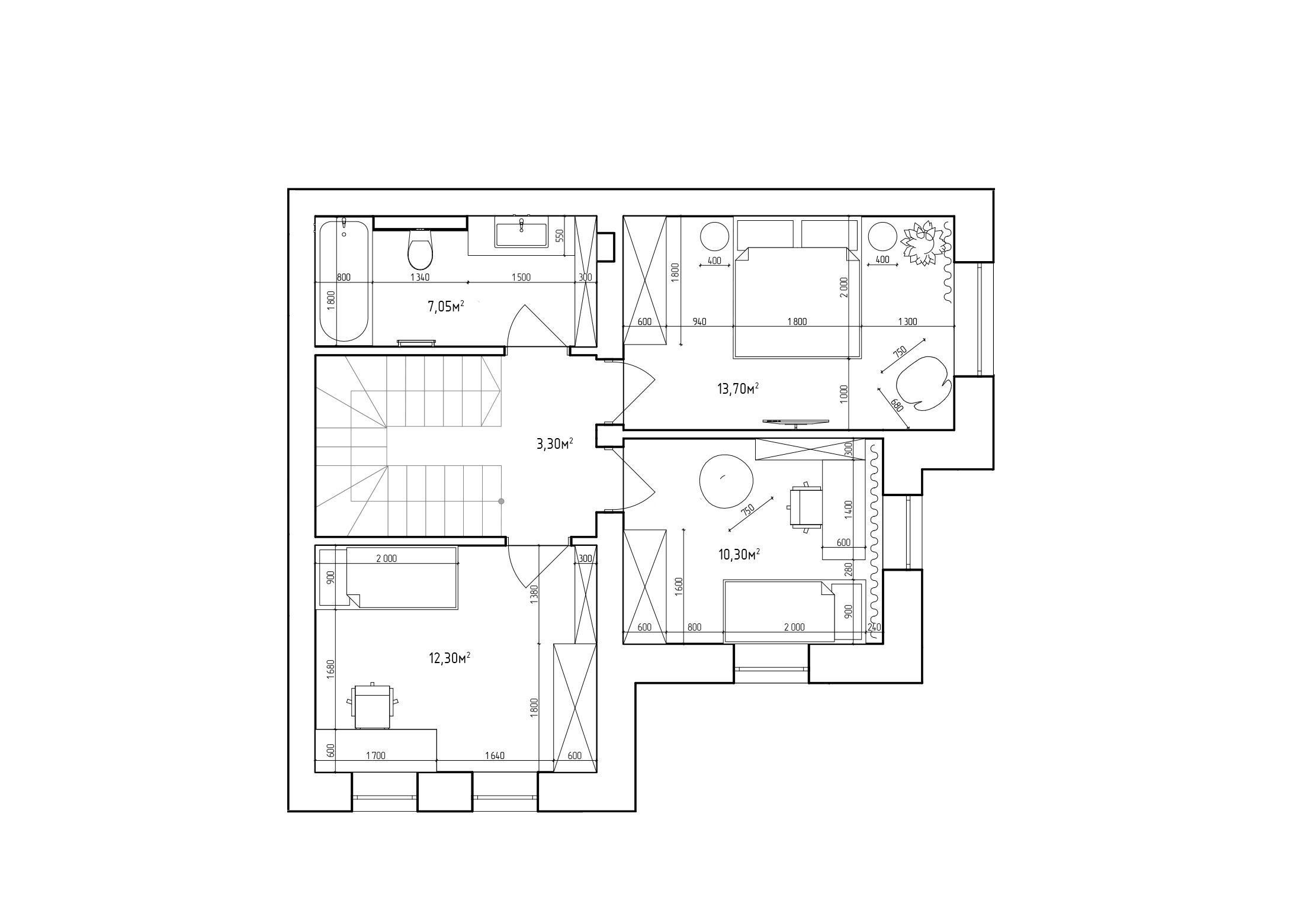
2-й поверх
Продано
Детальніше про комплектацію таунхаусу
1-й поверх
  • Передпокій 9.25 м2
  • Комора 2.2 м2
  • Коридор 7.35 м2
  • Санвузол 7.05 м2
  • Кухня-вітальня 24.45 м2
  • Тераса (К=0,3) 10.85 м2
  • Бойлерна 2.10 м2
2-й поверх
  • Коридор 3.30 м2
  • Спальня 13.7 м2
  • Ванна 7.05 м2
  • Спальня 12.3 м2
  • Спальня 10.3 м2
Загальна площа 102.9 м2
Дивитись планування
План 1-го поверху
План 2-го поверху

Комплектація квадрохауса

Прибудинкова ділянка від 1,4 соток
Крита тераса Площа тераси від 9,5 м.кв.
Парковочні місця Мінімум 1
Стіни Цегла
Утеплення Стіна: плити Hirsch Porozell EPS c додаванням графіту товщиною 150мм; дах: мінеральна вата Isover, товщиною 250мм
Дах Двошарова бітумна черепиця IKO
Вікна REHAU 70 П'ятикамерний профіль. Двокамерний склопакет з енергозберігаючим склом Clima Guard. Німецька фурнітура GU
Двері Броньовані металічні двері
Опалення Двоконтурний турбований газовий котел Vaillant
Водопостачання Водозабезпечення із артезіанської свердловини, окремий лічильник
Каналізація Cистема автономної каналізації
Электроенергія Підведена електропотужність - 12 кВт, з входом 380 В
Висота стелі 2,8м
Внутрішня обробка Якісна стяжка, перестінки, гіпсова штукатурка
TV, телефон, інтернет Ввід оптоволоконних кабелів, для організації інтернет послуг, TV
Сходи Монолітні сходи із бетону

Дивитись інший таунхаус

35 102.9 м2 2 поверхи
3 спальні
Ділянка 1,4 соток
Тераса 9,5 м.кв.
Продано
36 102.9 м2 2 поверхи
3 спальні
Ділянка 1,4 соток
Тераса 9,5 м.кв.
Продано

Обрати житло на інтерактивній карті

Таунхауси Таунхауси-дуплекс Квадрохаус Котеджі Коворкінг-кав'ярня
Черга 2 Черга 2 Черга 2 Черга 2 Черга 2 Черга 2 Черга 2 Черга 2 Черга 2 Черга 2 Черга 2 Черга 2 Черга 2 Черга 1.5 Черга 2 Черга 2 Черга 2 Черга 1.5 Черга 2 Черга 2 Черга 2 Черга 2 Черга 2 Черга 1.5 Черга 1.5 Черга 1.5 Черга 1 Черга 1 Черга 1 Черга 1 Черга 1 Черга 1 Черга 1 Черга 1 Черга 1 Черга 1 Черга 1 Черга 1 Черга 1
Черга 2
В проекті
+
Черга 2
В проекті
+
Черга 2
В проекті
+
Черга 2
В проекті
+
Черга 2
В проекті
+
Черга 2
В проекті
+
Черга 2
В проекті
+
Черга 2
В проекті
+
Черга 2
В проекті
+
Черга 2
В проекті
+
Черга 2
В проекті
+
Черга 2
В продажу
+
Черга 2
В продажу
+
Черга 1.5
Продано
+
Черга 2
В проекті
+
Черга 2
В проекті
+
Черга 2
В проекті
+
Черга 1.5
В проекті
+
Черга 2
В проекті
+
Черга 2
В проекті
+
Черга 2
В проекті
+
Черга 2
В проекті
+
Черга 2
В проекті
+
Черга 1.5
В проекті
+
Черга 1.5
Продано
+
Черга 1.5
Продано
+
Черга 1
Продано
+
Черга 1
Продано
+
Черга 1
Продано
+
Черга 1
Продано
+
Черга 1
Продано
+
Черга 1
Продано
+
Черга 1
Продано
+
Черга 1
Продано
+
Черга 1
Продано
+
Черга 1
Продано
+
Черга 1
Продано
+
Черга 1
Продано
+
Черга 1
Продано
+
Заявка

Хочеш переглянути все наживо?

Забудовник надає безпроцентну розстрочку, на придбання квартири або таунхауса,
за умови мінімальної передоплати 50%

Заявка відправлена!

Натискаючи на кнопку “Записатися на перегляд” ви даєте згоду на обробку персональних даних.
Дані не будуть передані третім особам.

Залишити заявку

Заявка відправлена! Найближчим часом менеджер зв'яжется з вами для уточнення деталей.